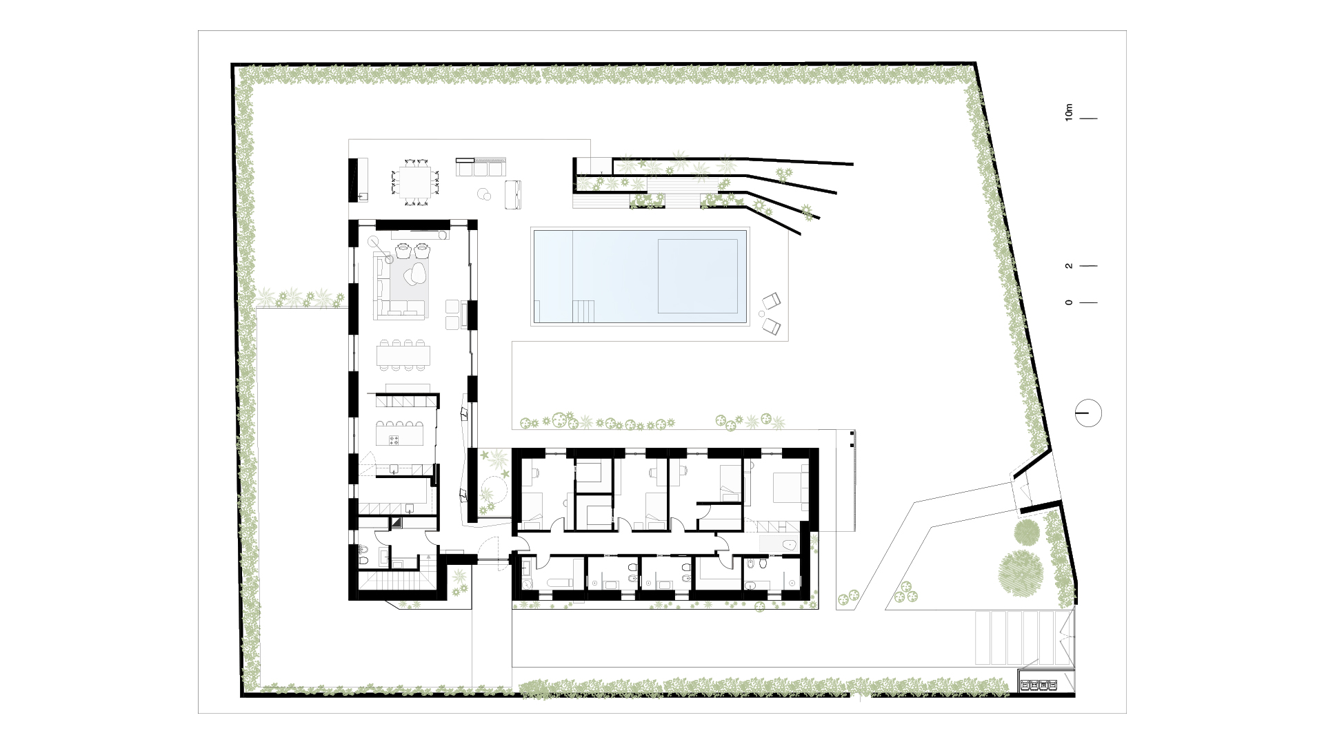
Nuova costruzione
Residenziale
Dalmine - BG
2024 - 2026
1600 mq
500 mq. di cui 240 di SLP
Privato
A3Aarchitetti