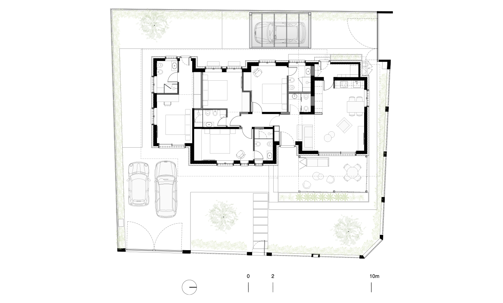
Ristrutturazione e Interior Design
Residenziale
Forte dei Marmi - LU
2024 - 2025
130 mq
Privato
A3Aarchitetti